PLANS / PERMIS de CONSTRUIRE Maison individuelle et autres Construction, rénovation, extension
Paimpol/ Lannion/ Guingamp/ Saint-Brieuc

«L’architecture à la portée de tous»
Titulaire d’un diplôme de collaboratrice d’architecte, après plusieurs années d’expériences auprès de maîtres d’œuvre et architectes, j’ai créé ma micro-entreprise en 2014, au service des particuliers et des professionnels.

PARTICULIERS
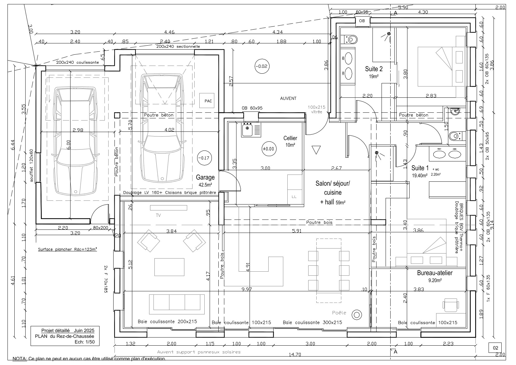
Elaboration du projet
Vous souhaitez construire, rénover, agrandir ?
Vous voulez réaménager votre habitation ?
Je mets mes compétences à votre service pour vous accompagner dans toutes les étapes de votre projet de construction personnalisé.
Ensemble nous ferons les choix les plus adaptés, les plans seront dessinés avec un grand soin du détail.
La meilleure solution vous sera proposée selon vos impératifs budgétaires et esthétiques :
- Une implantation et une organisation judicieuse des volumes.
- Une distribution optimale, fonctionnelle et agréable des espaces de vie.
- Le choix des matériaux (qualité, aspect) et leur mise en œuvre.
- La possibilité de faire évoluer votre projet dans le temps.
Mise en oeuvre du projet
Je collabore ou vous mets en relation avec des bureaux d’études spécialisées (RE2020, assainissement, étude de sol), un architecte le cas échéant, et les services instructeurs.
Je vous propose des entreprises compétentes pour la construction de votre projet et le suivi des travaux.


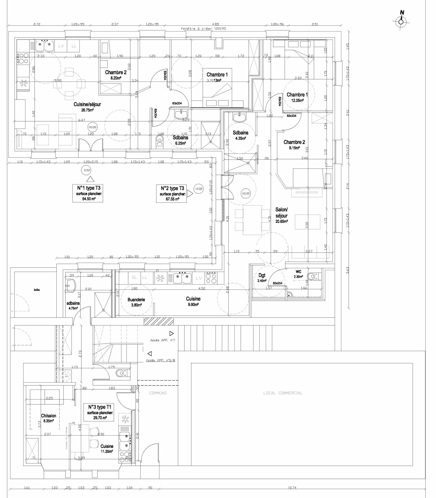
PROFESSIONNELS
Entreprises du bâtiment, maîtres d’œuvre, architectes, entreprise générale du bâtiment ou entreprise de second œuvre, vous connaissez un surcroît d’activité ou souhaitez un partenariat?
Investisseurs vous souhaitez rentabiliser un bien immobillier?
Je vous propose ma collaboration pour réaliser vos plans, de l’avant-projet aux plans d’exécution, ainsi que vos modélisations en 3D et la prise en charge des démarches administratives.

Située à Paimpol, je me déplace dans un périmètre de 50km aux alentours (secteurs de Saint-Brieuc, Lannion, Guingamp).